
Directive Consulting
Espace de travail B2B
Détails du projet
- Type
- Commercial
- Année
- 2025
- Lieu
- Centre-ville de Montréal, QC
- Statut
- Complété
- Client
- Projet académique
- Portée
- Design d'intérieur complet
- Superficie
- 9 018 pi²
- Durée
- 4 months
Un espace de travail dynamique conçu pour Directive Consulting, une agence marketing B2B, favorisant la collaboration, la créativité et l'esprit d'équipe au sein d'une tour prestigieuse de classe AAA.
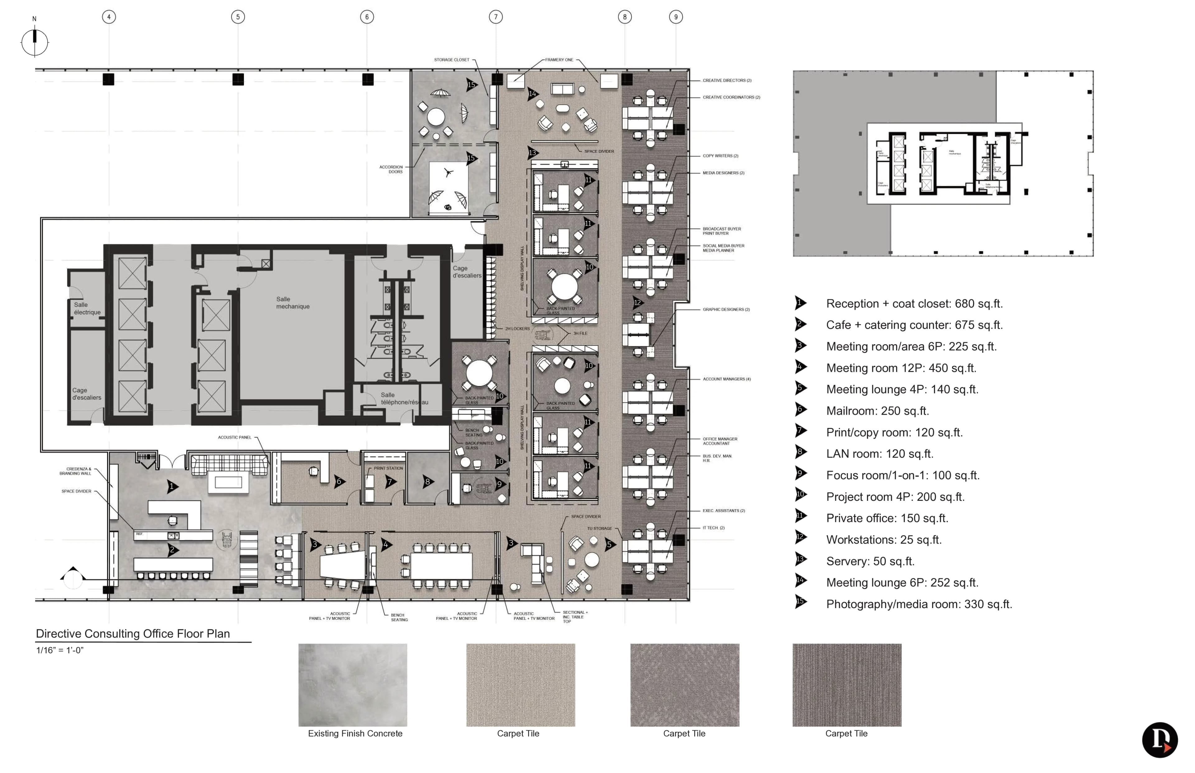
Ce projet réinvente les bureaux montréalais de Directive Consulting à la Maison Manuvie, une tour de 27 étages certifiée LEED Or et Platine de classe AAA située au 900, boul. de Maisonneuve Ouest. Le design équilibre les environnements collaboratifs et les espaces de travail concentré sur 9 018 pi², avec une réception de marque ornée de motifs chevron en métal perforé, un café complet, des salles de réunion, des postes de travail ouverts, des bureaux privés et des salons de collaboration flexibles. La palette de matériaux associe des laminés de bois chaleureux et des finis en béton à des accents de tissus vert foncé et violet, créant une atmosphère dynamique et professionnelle qui reflète la culture d'équipe de Directive.
Avis d'utilisation
Tous les dessins, rendus, planches et concepts présentés ici demeurent la propriété intellectuelle de Kayla Mayen et ne peuvent pas être copiés, diffusés, utilisés pour l'entraînement ou réutilisés sans autorisation écrite.
À propos du client

Portrait du lieu de travail

Emplacement du site

Aperçu du design

Plan d'étage

Plan de plafond réfléchi

Résultat de design : Réception

Résultat de design : Café

Résultat de design : Salle de réunion

Résultat de design : Postes de travail


Résultat de design : Détail du mobilier

Résultat de design : Collaboration et travail solo

Palette de matériaux
